Ova web stranica koristi kolačiće za pružanje usluga na najvišoj razini. .

Kazeta

Ugrađena pumpa kondenzata

Zahvaljujući dostupnosti dvije verzije: Compact i Standard, uređaj je savršen za male prostorije, urede i trgovačke centre. Svi kazetni ventilokonvektori imaju 2-cijevni izmjenjivač topline. Njihova najveća prednost je brza montaža i jednostavno održavanje.

Kružni protok zraka za ravnomjernu raspodjelu zraka
Horizontalni protok zraka sprječava propuh i smanjuje prljavštinu na stropu
Motor sa četiri brzine i jednom rezervom
Priključak svježeg zraka za zdravije i ugodnije uvjete
Ugrađena pumpa kondenzata
Otkrijte značajke i funkcije
Jednostavno održavanje

Lakša je zamjena komponenti i održavanje uređaja.

Funkcija automatskog ponovnog pokretanja

U slučaju kvara ili gubitka struje, jedinica pamti posljednje postavke i automatski se vraća na te postavke nakon nastavka rada

Ugrađena pumpa kondenzata

Kondenzatna pumpa omogućuje odvod kondenzata kada odvod gravitacije nije moguć.

Filtar zraka koji se može prati

Filteri se lako uklanjaju i ponovno postavljaju

Motor visoke kvalitete

Visokokvalitetni motori osiguravaju stabilan i tih rad uređaja

Visoka učinkovitost

Klima uređaj je dizajniran da postigne visoku učinkovitost i bude ekonomičan u korištenju

Funkcija vrućeg starta

U načinu grijanja, unutarnja jedinica će početi upuhivati ​​zrak kada se postigne dovoljno visoka temperatura

Funkcija tihog rada

Jedinica radi tiše sa smanjenom brzinom ventilatora i automatskim postavkama

Automatski način rada

Automatski način rada

Funkcija hotelske kartice (opcija)
Kompaktan dizajn

Manje dimenzije jedinice olakšavaju montažu i transport te smanjuju troškove rada

Višestruke brzine ventilatora

Zahvaljujući širokom rasponu brzina ventilatora, uređaj može prilagoditi brzinu trenutnim potrebama i uvjetima

Samodijagnoza

Kvarovi uređaja signaliziraju se na zaslonu pomoću kodova grešaka, što olakšava dijagnosticiranje njihovih uzroka

Počnite pri smanjenom naponu

Jedinica se sigurno pokreće pri smanjenom naponu

Sigurnost

Jedinica je opremljena mnogim značajkama koje osiguravaju pouzdan rad.

Širok raspon napona

Jedinica radi u širokom rasponu napona, smanjujući utjecaj fluktuacija napona na rad uređaja

Odbrojavanje vremena 24
Tehnički podaci
Model CH-FC30K2 CH-FC40K2 CH-FC50K2 CH-FC060K2 CH-FC085K2 CH-FC100K2 CH-FC120K2 CH-FC150K2
Ploča T-MBQ4-03B1 T-MBQ4-03B1 T-MBQ4-03B1 T-MBQ4-02C T-MBQ4-02C T-MBQ4-02C T-MBQ4-02C T-MBQ4-02C
Protok zraka visok/srednji/nizak m3/h 510/440/360 680/580/480 850/730/600 1000/850/720 1400/1190/1010 1600/1360/1150 2000/1700/1440 2550/2170/1840
Hlađenje
Visoke/srednje/niske performanse kW 3,0/2,79/2,55 3,7/3,4/3,14 4,5/4,14/3,83 5,70/4,73/3,96 7,27/6,46/5,71 8,22/7,39/6,54 10,39/9,25/8,20 12,90/11,51/10,21
Protok vode l/h 8.7 10.7 12.9 980 1250 1414 1787. godine 2219
Bokd tlaka vode kPa 14 15 16 23.8 27.0 31.2 44.0 40.0
Grijanje
Visoke/srednje/niske performanse kW 4,0/3,48/3,16 5/1/4/39/4/03 6,0/5,16/4,74 9,66/7,72/6,27 12,42/9,93/8,07 13.85/11.08/9.00 17.58/14.06/11.42 17.60/14.08/11.44
Bokd tlaka vode kPa 14 15 16 16.4 14.6 14.8 34.7 36.7
Napajanje V ~Hz/faza 230V ~50Hz/1 faza 230V ~50Hz/1 faza 230V ~50Hz/1 faza 230V ~50Hz/1 faza 230V ~50Hz/1 faza 230V ~50Hz/1 faza 230V ~50Hz/1 faza 230V ~50Hz/1 faza
Potrošnja energije W 35 60 75 125 150 155 190 190
Razina tlaka visoka/srednja/niska dB(I) 36/32/27 42/38/33 45/41/36 45/41/36 47/43/38 48/44/39 49/45/40 50/46/41
Izmjenjivač
Broj redaka 2 2 2 2 2 2 2 3
Maksimalni radni tlak MPa 1.6 1.6 1.6 1.6 1.6 1.6 1.6 1.6
Ploča
Dimenzije (Š x V x D) mm 715x123x715 715x123x715 715x123x715 950x45x950 950x45x950 950x45x950 950x45x950 950x45x950
Masa kg 3 3 3 6.0 6.0 6.0 6.0 6.0
Veze
Priključci za dovod/odvod vode inč RC3/4 RC3/4 RC3/4 RC3/4 RC3/4 RC3/4 RC3/4 RC3/4
Dehidracija mm Ø32 Ø32 Ø32 Ø32 Ø32 Ø32 Ø32 Ø32
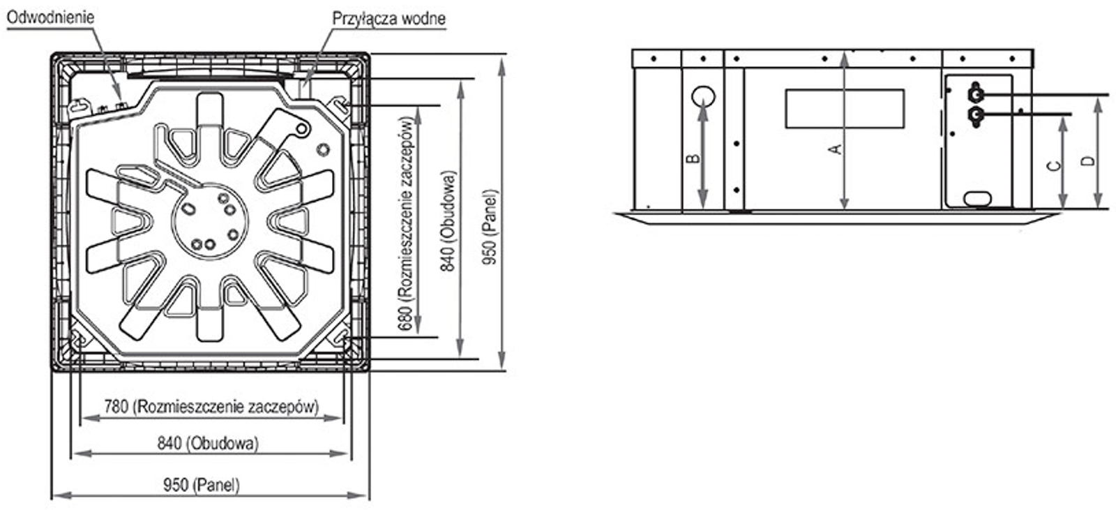
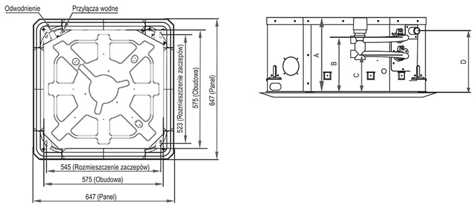
Dimenzije
Wymiary - Kasetonowe
Model I B C D
CH-FC030K2 261 190 124 213
CH-FC040K2 261 190 124 213
CH-FC050K2 261 190 124 213
Wymiary - Kasetonowe
Model I B C D
CH-FC060K2 230 170 135 185
CH-FC085K2 300 190 145 195
CH-FC100K2 300 190 145 195
CH-FC120K2 300 190 145 195
CH-FC150K2 300 190 145 195